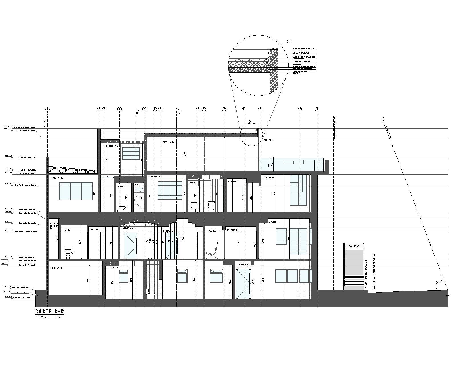
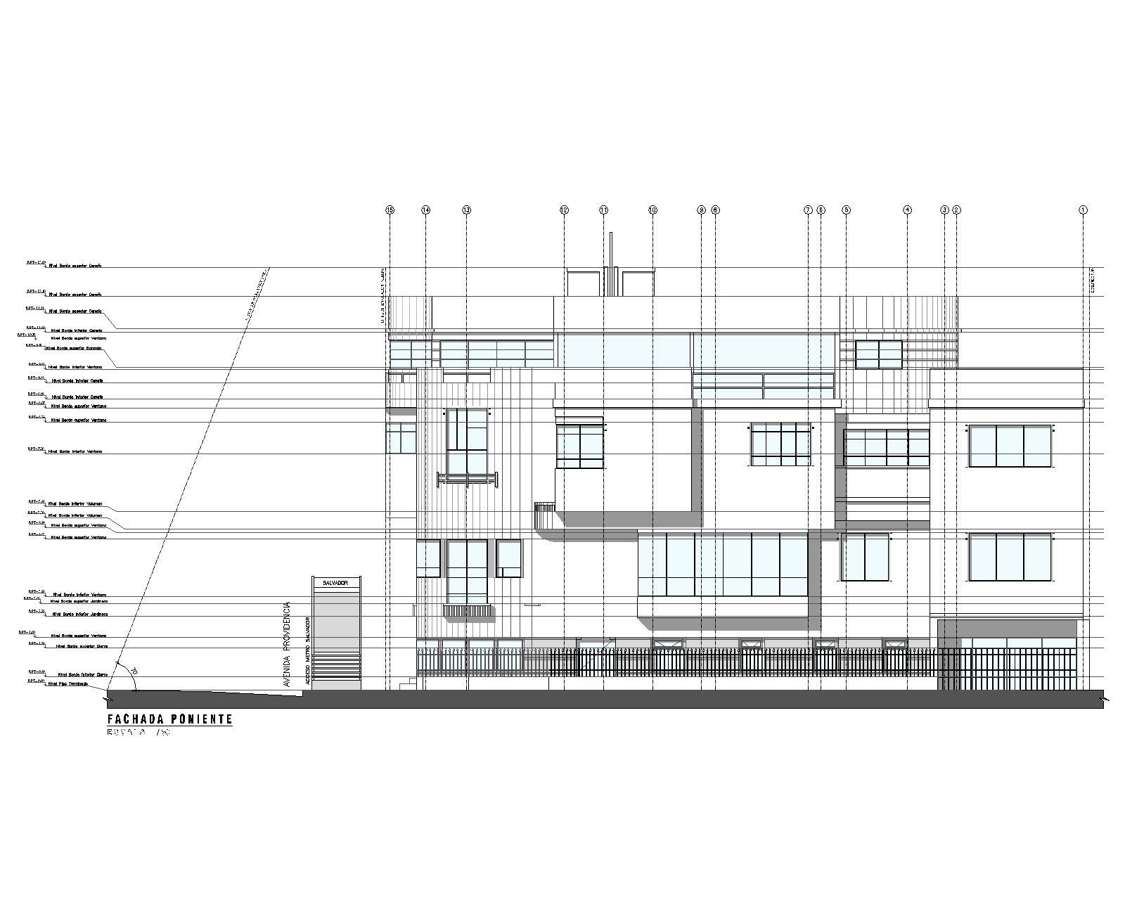
La Casa Dagorret es un inmueble ubicado en la intersección de avenida Providencia con la calle General Salvo, en la comuna de Providencia, en la ciudad de Santiago, Chile.[1] Obra del arquitecto Luciano Kulczewski, fue construida como residencia para la familia Dagorret en 1935.[1] Está dentro de la zona de conservación histórica Población Salvador Legión Militar de Chile.[2]
Con dos pisos, un zócalo y una terraza, la casa está construida en hormigón armado.[1][3]
Referencias




